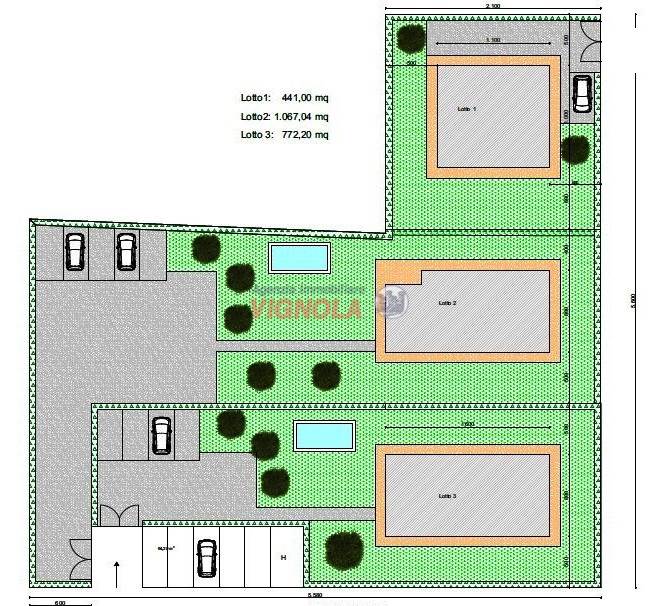
441 m2
Primal Features
Code
TV/014
Price
200.000 EUR
Energetic Class
NA
Locals
1
Other features and accessories
Rank
Elegant
Position
Center
Cookie preference